CAD-ING d.o.o.
Projektiranje i izrada statičke i izvedbene dokumentacije za građevinske konstrukcije.
- Zrinskih i Frankopana 1, 42000 Varaždin
- +385 42 300 990
- info@cad-ing.hr
- Pon–Pet 8:00–16:00
NAŠE USLUGE
Projektiramo nosive sustave i izrađujemo kompletnu statičku i izvedbenu dokumentaciju za građevinske projekte.
- Statički proračuni
- Planovi oplate
- Planovi armature
- Nacrti čeličnih i drvenih konstrukcija
- Savjetovanje kroz sve faze projekta
Više od 30 godina iskustva na domaćem i međunarodnom tržištu.
NAŠI PROJEKTI
Uspješno smo surađivali s brojnim domaćim i inozemnim partnerima. Pregledajte naše ključne projekte i uvjerite se zašto smo pouzdan izbor za najzahtjevnije zadatke.








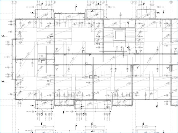
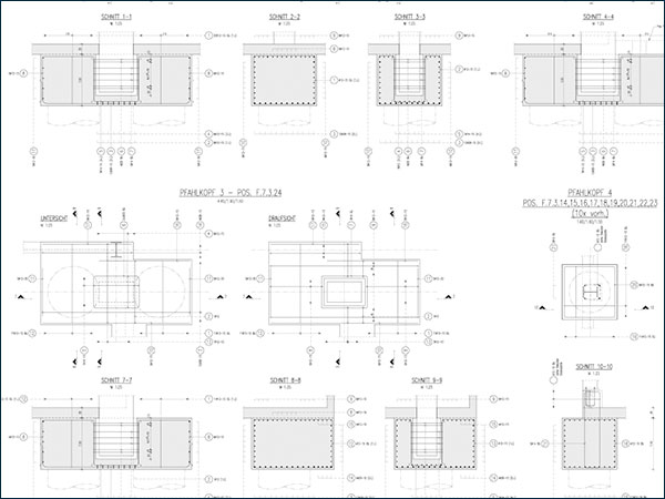
PRIMJERI DOKUMENTACIJE
Odabrani primjeri izvedbenih nacrta iz naših projekata. Pregledajte planove i preuzmite datoteke.













